


















Rok: 2021 – 2022
Lokalita: Praha – Dejvice
Kategorie: Byt
Fáze: Realizace
Klient: soukromá osoba
Užitná plocha: 84m²
Autor: Markéta Zdebská, Marek Žáček
Spolupráce: foto – Aleksandra Vajd
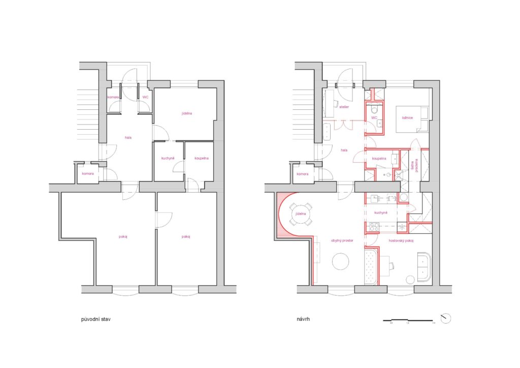
Klienti nás oslovili s nejasnou vizí ohledně budoucího využití nemovitosti. Byt byl sice určen k pronájmu, ale jednou by měl sloužit k bydlení vlastní rodině. Nebylo však například jasné, kolik místností je potřeba pro budoucí provoz. Součástí naší práce tedy bylo prověřit prostorové možnosti a následně navrhnout jedinečný, ale univerzální a ekonomicky efektivní návrh. Jsou to témata nám blízká, tak jsme se úkolu s chutí ujali.
Z původního provozního zmatku jsme vykřesali 2 nezávislé pokoje a malý ateliér, velkorysý obytný prostor s kuchyní a spoustu zázemí ve formě prostupné komory s úložnými prostory. Toto výsledné uspořádání si investoři zvolili ze dvou variant, které jsme pro ně připravili. V šuplíku tak máme ještě jedno řešení, které je sice prostorově velkorysejší, ale nenabízí tolik místností.
Nejvíce nadšení však sklidila nová jídelna v oblouku. Z divného koutu jsme totiž vystavěli jasně vydefinovaný prostor a ještě jsme obytnou místnost důkladně akusticky odizolovali od bytu sousedů, který je za velmi tenkou zdí. Rádi přicházíme s řešeními, která nejsou samoúčelná, a myslíme si, že se to povedlo i zde.
Prostor, resp. jeho atmosféru jsme přetvořili s respektem k historii. Ve vstupní hale jsme navrhli novou prosklenou stěnu v tradičním tvarosloví. Tuto návrhovou linku doplňují nadsvětlíky v jednom z pokojů a nad vstupem do kuchyně. Jejich cílem je pochopitelně distribuce světla do středu dispozice. Tyto prvky dodávají bytu velkolepost a vynikají zejména v kontrastu se skrytými zárubněmi. Mosazné kliky pak splňují maximální estetický i hygienický standard.
Komfort nabízí vestavný nábytek převážně z lakované MDF, která je leitmotivem vybavení bytu, ale i obyčejného bílého lamina, tam kde má nábytek splývat se stěnami.
Původní parkety jsou renovované a doplněné novými. Dodávají bytu tradiční měřítko a detail, jak to máme rádi J.
Samostatné WC a menší koupelna se sprchovým koutem jsou opatřeny bílými obklady středního formátu a dávají zázemí solidní základ, který může fungovat na věky. Chromové armatury jsou spíš provizoriem pro účely nájmu, ale jejich budoucí obnova je to nejsnadnější, tak jako pozdější doplnění vestavného gauče v obytném prostoru.
Kontakt s exteriérem (klidná ulice se vzrostlými stromy na jedné straně a prostorný dvůr na straně druhé) změkčuje nenápadný okenní textil.
V této podobě jsme prostor předali dalšímu životu, který se bude na bílo-hnědém pozadí skvěle vyjímat.