















Rok: 2024
Lokalita: Praha – Smíchov
Kategorie: Rodinný dům
Fáze: Studie
Klient: soukromá osoba
Autor: Markéta Zdebská, Marek Žáček, Tomáš Vojtíšek
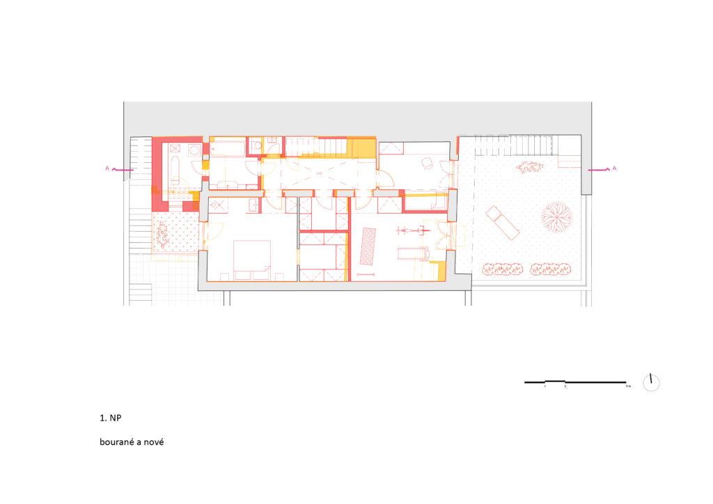
Přerovnání jednoho z domů na pražských Hřebenkách. Měli jsme možnost prostudovat specifickou typologii terasových domů, kde je spodní podlaží s ložnicemi chabě osvětleno. My jsem se s tímto problémem vypořádali průrazem mezi podlažími, díky kterému získává dům velkorysost odpovídající jeho objemu i lokalitě.